边坡的存在是保证路基稳定,边坡形式主要分为两种,一种是填方边坡,另一种是挖方边坡。今天我们湛江宏城测绘仪器给大家介绍一下边坡在科力达RTK手簿工程之星5.0中的放样方法。


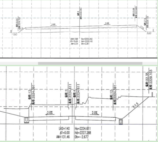
3、先准备好边坡断面参数,LK0+760断面,左右幅均为1:1.5的填方边坡。LK0+140右幅为1:1.5的挖方边坡,碎落台宽度为2m,路基宽度为12.75m。





如果你对该品牌RTK或者其他品牌RTK及全站仪等仪器的使用还有什么疑问,欢迎咨询我们。湛江宏城测绘提供测绘仪器的销售等业务,也提供优质的售后服务,产品相关的技术问题和维修问题都会为大家解决。